Logo von Loos-Architektur Loos-Architektur
  • Projekte
  • Leistungen
  • Büro
  • Kontakt
  • Jobs

Architekturprojekt – Mehrfamilienhaus in Weilbach

Bild 1: Mehrfamilienhaus in Weilbach, Frankfurt

Auf der Scheib 2, Weilbach: Einzigartiges Mehrfamilienhaus mit modernem Flair

Dieses moderne Gebäude mit 6 Wohnungen liegt am Ortseingang von Weilbach, direkt am Feldrand und beeindruckt mit seiner harmonischen Integration in die umliegende Natur. Es öffnet sich mit großzügigen Balkonen und einer atemberaubenden Dachterrasse, die einen wunderschönen Blick auf die imposante Skyline von Frankfurt bietet.

Die Lage dieses modernen Wohnkomplexes am Ortseingang von Weilbach bietet eine perfekte Mischung aus Ruhe und urbanem Flair. Sie können die Vorzüge des Landlebens genießen, während Sie gleichzeitig die Nähe zur pulsierenden Metropole Frankfurt am Main erleben.

Entdecken Sie dieses einzigartige Mehrfamilienhaus in Weilbach und erleben Sie den Komfort, die Schönheit und die ökologischen Vorteile, die es zu bieten hat. Tauchen Sie ein in eine moderne Wohnwelt, die perfekt mit der Natur und den Bedürfnissen zukünftiger Generationen im Einklang steht.

Ort Rheinblick, Patersberg
Jahr 2015-2020
Größe ca. 2.500 m²
Typus Mehrfamilien / Appartementhaus
Partner /Zusammenarbeit Statik/EnEV/Schallschutz Ingenieurconsult Bergemann
Brandschutz K. Werdecker
LPH 1 - 8
Bild 2: Mehrfamilienhaus, Rhein-Main-Gebiet
Bild 3: Mehrfamilienhaus 2, Green Building
Bild 4: Mehrfamilienhaus 3, energieeffizient
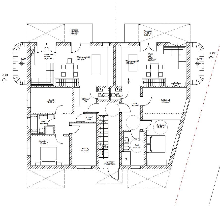
Bild 5: Grundriss Mehrfamilienhaus, Architektur
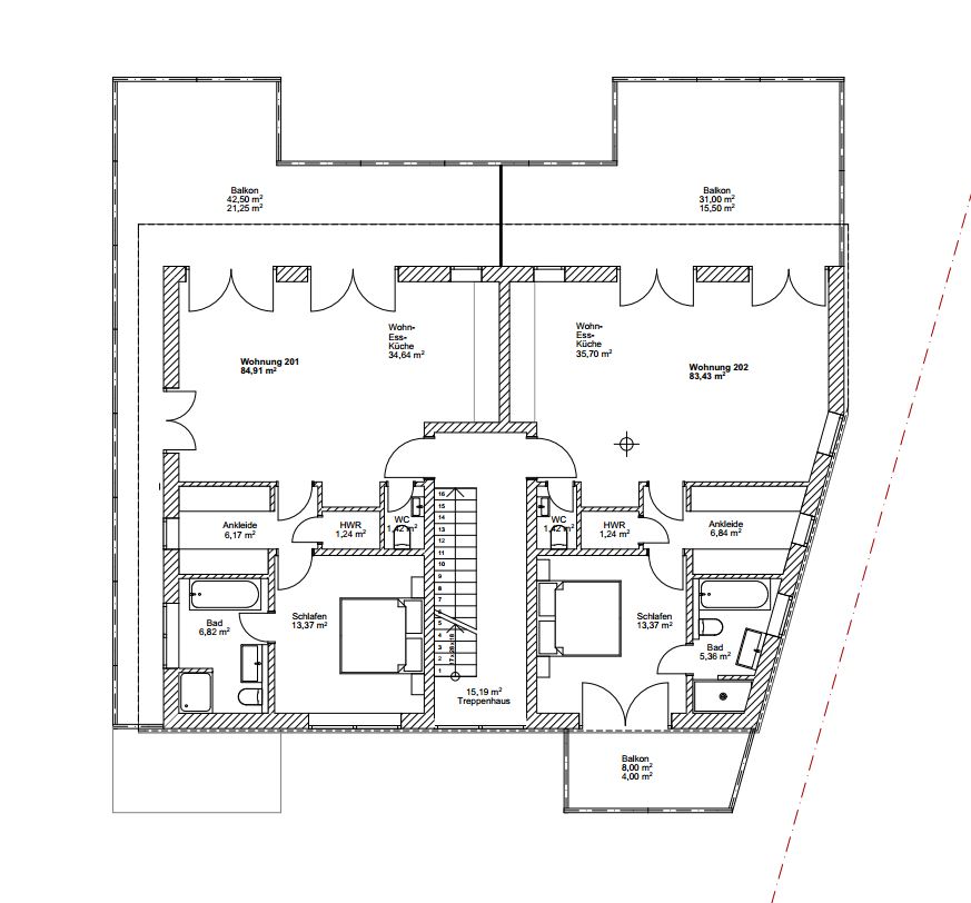
Bild 6: Grundriss Mehrfamilienhaus 2, �kologisches Bauen
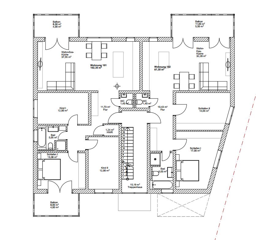
Bild 7: Grundriss Mehrfamilienhaus 3, �kologisches Bauen
Bild 8: Grundriss Mehrfamilienhaus 4, �kologisches Bauen

© 2024 Loos-Architektur · Impressum