Logo von Loos-Architektur Loos-Architektur
  • Projekte
  • Leistungen
  • Büro
  • Kontakt
  • Jobs

Architekturprojekt – Einfamilienhaus und Bürogebäude in Raunheim

Bild 1: Einfamilienhaus

Kombiniertes Einfamilienhaus und Bürogebäude in Raunheim: Vielseitige Immobilie für Wohnen und Arbeiten

Im idyllischen Neubaugebiet von Raunheim, am Rande eines Waldes, wurden zwei nebeneinanderstehende Gebäude errichtet – ein Einfamilienhaus und ein Bürogebäude.

Das Einfamilienhaus dient als Wohnsitz für die Familie, während das andere Gebäude Büro- und Fitnessräume für den Eigentümer bereithält. Das Wohnhaus wurde im charmanten italienischen Landhausstil gestaltet, während das Bürogebäude durch seine moderne Anmutung einen klaren Kontrast zum Wohnhaus bildet.

Die moderne Architektur beider Gebäude fügt sich harmonisch in die Umgebung ein und verleiht der Immobilie eine zeitgemäße Ausstrahlung. Besonderes Augenmerk wurde auf ökologische Aspekte gelegt, um eine nachhaltige Bauweise zu gewährleisten.

Das kombinierte Einfamilienhaus und Bürogebäude bietet vielfältige Möglichkeiten für Wohnen und Arbeiten. Die Nähe zum Wald schafft eine angenehme und ruhige Atmosphäre, ideal für die Wohnnutzung.

Raunheim, eingebettet in das Rhein-Main-Gebiet, bietet eine attraktive Lage für diese Immobilie.

Ort Raunheim
Jahr 2013 - 2014
Größe 544 m²
Typus Wohnhaus 256 m²
Bürogebäude 288 m²
Partner / Zusammenarbeit G. Saß Bauplanung GmbH
LPH 1 - 4
Bild 2: Einfamilienhaus 1
Bild 3: Einfamilienhaus 2
Bild 4: Einfamilienhaus 3
Bild 5: Einfamilienhaus 4
Bild 5: Einfamilienhaus 5
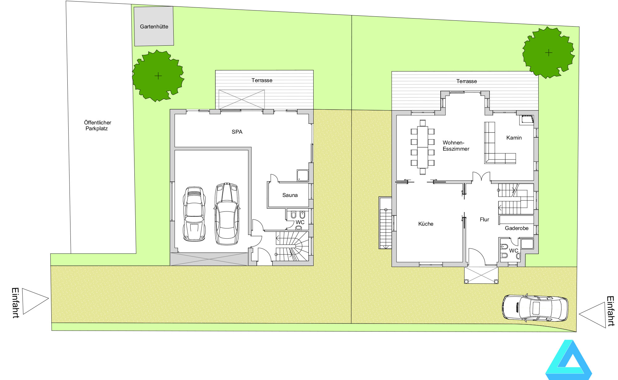
Bild 6: Grundriss Einfamilienhaus
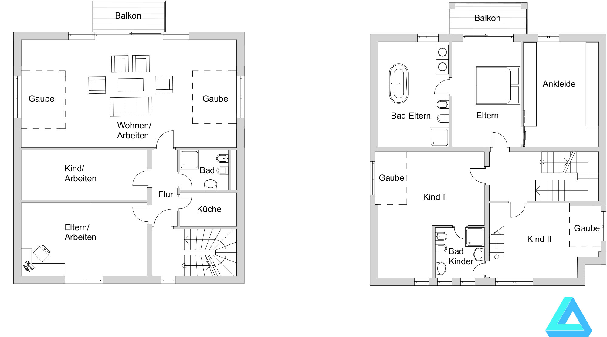
Bild 7: Grundriss Einfamilienhaus 2

© 2024 Loos-Architektur · Impressum